新闻中心

Information Center
公司新闻集团资讯项目资讯

喜讯丨一等奖7项,共36项!中衡设计2019年度苏州市城乡建设系统优秀勘察设计奖获奖名单出炉

发布日期:2019-08-20

  7月初,苏州市住房和城乡建设局公布2019年度苏州市城乡建设系统优秀勘察设计评选结果。中衡设计集团股份有限公司共斩获一等奖7项、二等奖16项、三等奖13项36项大奖。其中一等奖包括民用建筑一等奖4项,工业建筑一等奖2项,住宅建筑1项,均为中衡设计集团原创作品。获奖项目涵盖了建筑工程、住宅、风景园林、装饰工程、幕墙工程等多个类别,体现了中衡设计多年来打造以原创及综合技术进步为核心竞争力所取得的丰硕成果!
中衡设计集团获奖名单
01一等奖
【民用建筑】
徐州回龙窝历史街区整体项目
金融小镇项目
苏州工业园区唯康路幼儿园项目
浒墅关经济技术开发区文体中心
【工业建筑】
张家港华夏科技园一期
康力电梯试验塔
【住宅设计】
南京九间堂项目二期50栋
02二等奖
【民用建筑】
地产公司高铁新城SOHO办公楼
苏州工业园区悦澜湾学校
苏州湾科技城规划展示馆
博世汽车部件(苏州)有限公司208研发办公大楼扩建项目
江苏出入境检验检疫综合技术实验用房
稻谷国际中心
湖山樾苑91#楼
(中衡设计集团苏州华造建筑设计有限公司)
苏地2013-G-28号地块
(中衡设计集团苏州华造建筑设计有限公司)
【工业建筑】
压片机.金属刀具的研发及生产项目
采埃孚转向系统汽车电液转向机系统项目
【风景园林工程】
徐州回龙窝历史街区项目(景观)
【住宅设计】
水漾花城(苏州市相城区D&F地块开发项目F1&F2地块)
苏地2015-G-15号地块(湖山樾苑)二期
(中衡设计集团苏州华造建筑设计有限公司)
淀湖•北岸
(中衡设计集团苏州华造建筑设计有限公司)
【装饰工程】
苏州中心广场项目BC地块(负一层及地上内装部分)
苏州中心广场项目C地块6号办公楼
03三等奖
【民用建筑】
苏州工业园区星浦医院
(中衡设计集团苏州华造建筑设计有限公司)
繁花邻里项目
(中衡设计集团苏州华造建筑设计有限公司)
【工业建筑】
布雷博(南京)汽车零部件有限公司新建工厂项目
汽车智能化柔性焊接生产线生产项目 1#生产车间
梅特勒-托利多(常州)测量技术有限公司新建厂房项目
【风景园林工程】
苏州广播电视总台现代传媒广场景观
宿豫城市更新工程(宿豫区政府周边庭院开放改造工程设计)
【住宅设计】
独墅湖西金悦花园(苏地2015-G-4号项目B地块)
宿迁隆城•紫竹苑
康盛水月周庄4.1期
(中衡设计集团苏州华造建筑设计有限公司)
鲁能苏地2016-WG-5号地块A地块(鲁能公馆)
(中衡设计集团苏州华造建筑设计有限公司)
太湖新城吴江夏蓉街东侧高新路南侧地块
(中衡设计集团苏州华造建筑设计有限公司)
【幕墙工程】
苏州华兴源创电子科技厂房项目
部分获奖项目展示
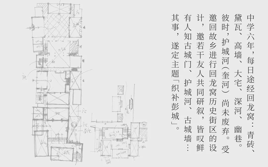
  徐州回龙窝改造历史街区整体项目
  项目地点/徐州市云龙区
  总建筑面积/20762.17㎡
  竣工时间/2015年10月
  徐州回龙窝据徐州古城城南,以此为焦点,串联起古城南门(奎光门)及古城墙、户部山、开明街、黄河古道、李可染故居、天主教堂及修道院等如今已逐渐淡忘在人们记忆里的徐州古城映象,恢复古城历史架构与界面。


  回龙窝原是徐州府南的民居聚集区,距今已有200年,后逐渐淹没在现代化潮流中。此次以“发现彭城•织补彭城”为创作理念,并非只为修复或重建回回龙窝的老宅老街,而是寻找散落于城市角落的历史遗脉,加以织补,关联以回龙窝地区为焦点的历史建筑通廊,恢复古城历史架构与界面,从织补建筑到织补城市,再到织补文脉,重释属于这里的风华盛世。

(摄影@秦伟)
  金融小镇项目
  项目地点/苏州市高新区科技城
  总建筑面积/38597.5㎡
  竣工时间/2017年11月
  本项目设计秉承轻逸、灵慧的规划和设计概念。在基地的高程分布上,将整个地块分成多个台地的标高,最高点达到黄海高程16.75 米,最低位于黄海高程7.9 米处。在整体的道路和脉络的规划上根据金融企业的特点提出四水归堂的整体理念,将山势与道路走势相互结合。同时遵循顺应地形、因势利导的原则,将山地整理成四个标高的台地,南部布置配套公建,北部依山布置金融小总部,弹性分布, 错位布置,形成院落景观。

(摄影@秦伟)
  苏州工业园区唯康路幼儿园项目
  项目地点/苏州工业园区
  总建筑面积/5848.45㎡
  竣工时间/2018年4月
  该项目设计理念上强调游戏空间,通过不同的“游戏空间”把幼儿园的每一处活动场所组织串联起来,并在垂直中庭空间里发生变化,带来丰富多样的可玩性场所。


  通过对墙体开窗、开洞、挑空空间、屋顶天窗等设计运用,既满足了幼儿园使用的需要,也营造了不同形式的光影来增加内部空间的活泼氛围。强调共享的中庭空间,曲线围合的中庭创造了活泼的游戏空间,在公共的中庭可以开展人数较多的集体活动,建筑内部用丰富的连廊将不同功能串联在了一起,这些空间不仅仅发挥交通的功能,也同时赋予了游戏的概念,使得停留、交往、嬉戏、表演、展示、行走等各种富有趣味的空间属性贯穿于流线当中,真正做到趣味性和功能性的合二为一。

(摄影@秦伟)
  浒墅关经济技术开发区文体中心
  项目地点/苏州市浒墅关经济技术开发区
  总建筑面积/21851.8㎡
  竣工时间/2018年9月
  该项目从城市需求出发,立足于创造面向市民的公共型建筑。在高密度、高活性的周边环境中打造出城市的绿色呼吸空间,赋予该项目开放而多样的场所感,将休闲型、消费型、运动型场所空间融为一体。围绕阳光、绿色的主题,尽可能将最原生态的自然元素引入室内外的景观配置设计中,通过两个体块中间的景观平台,让场地周围的景观融入到建筑中。整个地块通过纵向景观轴线将场地南北两侧的生态景观区形成了系统性的景观底图。


  设计特色:场馆上抬,自由组织场馆之外的其他功能,最大化利用土地资源;扩大室外公共休憩的空间,采用景观台阶的方式,二层作为最主要的公共空间,作为链接各个场馆之间的纽带,同时也提供了开阔的景观视野;运用丝绸表皮将两个场馆串联起来,场馆之间既相互独立,又不乏整体性,同时体现了苏州作为丝绸之府的地域文化特色。

(摄影@秦伟)
  张家港华夏科技园一期
  项目地点/张家港市
  总建筑面积/87428 ㎡
  竣工时间/2018年2月
  该项目从城市需求出发,立足于创造面向市民的公共型建筑。在高密度、高活性的周边环境中打造出城市的绿色呼吸空间,赋予该项目开放而多样的场所感,将休闲型、消费型、运动型场所空间融为一体。围绕阳光、绿色的主题,尽可能将最原生态的自然元素引入室内外的景观配置设计中,通过两个体块中间的景观平台,让场地周围的景观融入到建筑中。整个地块通过纵向景观轴线将场地南北两侧的生态景观区形成了系统性的景观底图。


  该项目布局上为了打破传统的科技园兵营式的模式,设计将服务用房放至主入口处,并且架空一层做机动车停车,结合大台阶将人流引入到二层,并在主入口处打开行成主入口广场。建筑造型上公共服务中心采用动感折线,在入口广场上扬形成入口空间,简洁有力地展示了现代产业园的建筑形象。入口广场结合电梯设置一处标志塔,既满足大平台无障碍要求,又提升了园区标志性景观。公共服务中心内庭院与外部景观结合,建筑间的庭院与外部景观空间的结合,内外结合的空间形成了相对独立的活动区,体现了以人为本精神。

(摄影@秦伟)
  康力电梯试验塔
  项目地点/苏州市吴江汾湖
  总建筑面积/26389 ㎡
  竣工时间/2016年11月
  康力电梯新建测试塔是目前已建成世界电梯试验塔的第一高度,其电梯测试速度最高可达到21m/s,除了集中技术研发和测试功能,试验塔还兼具观光功能。
  在设计初期,团队经过严谨的论证,避免了简单地将测试塔理解为一般(超)高层建筑核心筒的设计,而是重新考虑平面布局,最终采用规整的矩形平面,将测试井道均匀地围绕在平面四周,形成有利于结构体系设计的均衡配置,而且测试井道所围合成的内部空间在不停站层敲好提供了所设计中需要的设备空间。随着塔体的升高,在八层、二十六层和三十一层对塔身进行了三次建筑形体缩进处理,这样一方面是出于对抵抗风荷载方面的积极回应,另一方面也是丰富的建筑形态的处理手法。最后分别在二十六层和三十一层布置两处可供参观、游览的观光平台,观光平台以半圆形体量嵌于塔身之上,平台向外悬挑达8m,探向空中,可俯瞰整个区域。一条观光测试梯所需要的玻璃体量由塔底向上至塔顶,贯穿整个塔身,提亮了整个测试塔。


  项目采用了以设计为主导的EPC模式,是中衡设计集团股份有限公司近年来工程总承包的重要成果之一。在以设计为主导的EPC模式下,建筑师负责制得到了有效、全面的贯彻,在建筑完成度与建造成本控制等方面都十分鲜明地体现了EPC模式的优势。

(摄影@秦伟)
  南京九间堂项目二期50栋
  项目地点/南京江宁开发区
  总建筑面积/3.987万㎡
  竣工时间/2018年6月
  本项目采用现代的构成手法结合居住建筑的功能特点有机组合在一起,营造出新型的简约中式风格造型,凊新素雅,便于维护。白色外墙搭配深色面砖,着重体现建筑的雕塑感和线条感,细节处辅以传统中式元素,与古朴清秀的秦淮风光相互融合。


  项目设计上充分利用基地周边资源,采用因地制宜的布局方式和人性化的结构特征,强调环境设计,营造优雅的居住生活氛围,为居住者提供亲切宜人的空间感受;通过对周边已形成的城市资源的研究,抓住与城市环境紧密衔接的切入点,是本设计规划结构的基础。交通、社区配套、景观资源等元素的叠加、重组,构成了该设计的基本格局;体现“以人为本”,意在营造适宜人活动的尺度和空间。

(摄影@秦伟)
  湖山樾苑91#楼
  项目地点/苏州市吴中区
  建筑面积/2232.46㎡
  竣工时间/2016年
  设计理念:“太湖石”作为中国古典江南园林中一个独具特色的元素,体现了岁月沧桑感,形式上与“时间”概念相契合,建筑如同湖岸边破土而出的巨石,一半露出,被自然侵蚀。一半埋藏于山下, 与地势地貌紧密相连。建筑就像一个太湖石的片段,被一一分解。


  外部形象朴拙,有被自然风雨侵蚀的孔洞效果,剁斧混凝土与清水混凝土交接使用,犹如破土而出的太湖石。溪院以简洁的硬质铺装为主,曲水流觞蜿蜒穿梭在疏影婆娑树林当中,泉水汩汩声萦绕在其中,这些都营造出场地的静谧氛围;水院以水为主,静谧的水面和建筑交相辉映。


  苏地2013-G-28号地块
  项目地点/苏州市工业园区
  建筑面积/2247.25㎡
  竣工时间/2017年
  设计理念:建筑整体布局源自于一个十字型的分割,又被两道微垂的一字型弧面概括。功能上形成四个方向的限定或者朝向,同时形体上归纳于两道孪生的体块。建筑色彩借鉴徽派建筑粉墙黛瓦的特点,以灰黑色金属勾勒顶部轮廓,以白色石材铺满所有墙面。由此建筑写意留形,像完成一幅幅水墨画一样生成建筑的每一个面相,黑色的线与白色的面理性又浪漫的表达着立体主义的魅力,以建筑的语言激发出场所的诗意。


  景观设计中将古典美与现代美并重表达,面湖浩渺处以无边界水池将泳池连接向远方,归来幽隐处以亭台山石收于身旁。作品期望表达一种入世的随和。不逃往古代的田园,也不沉沦城市的山林。解构传统并融合当下,怀旧而不伤感。
  院落空间与建筑内外结合,使建筑在景观中若隐若现,沿湖绿地将成为商业建筑与自然互动的最佳空间。